Completed 2nd Year
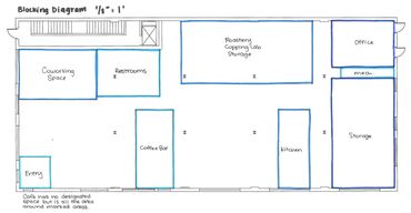
Project Type: Coffee Shop and Roastery
Location: 232 Lafayette St, Baton Rouge, LA 70801
Software Used: Autocad, InDesign, Photoshop, Illustrator

Historic downtown Baton Rouge printing house renovated as a coffee shop and roastery.








We use cookies to analyze website traffic and optimize your website experience. By accepting our use of cookies, your data will be aggregated with all other user data.